Architectica
about
contact
works
office
home
public
building
competitions
2016
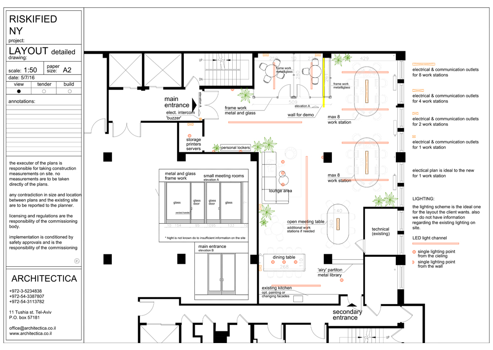
Riskified Ny
IS UNDER CONSTRUCTION