Architectica
about
contact
works
office
home
public
building
competitions
2015
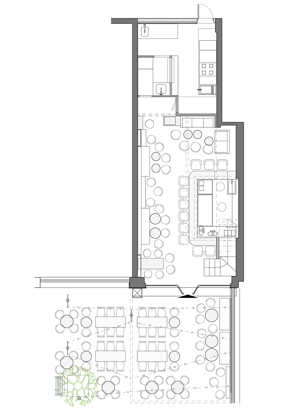
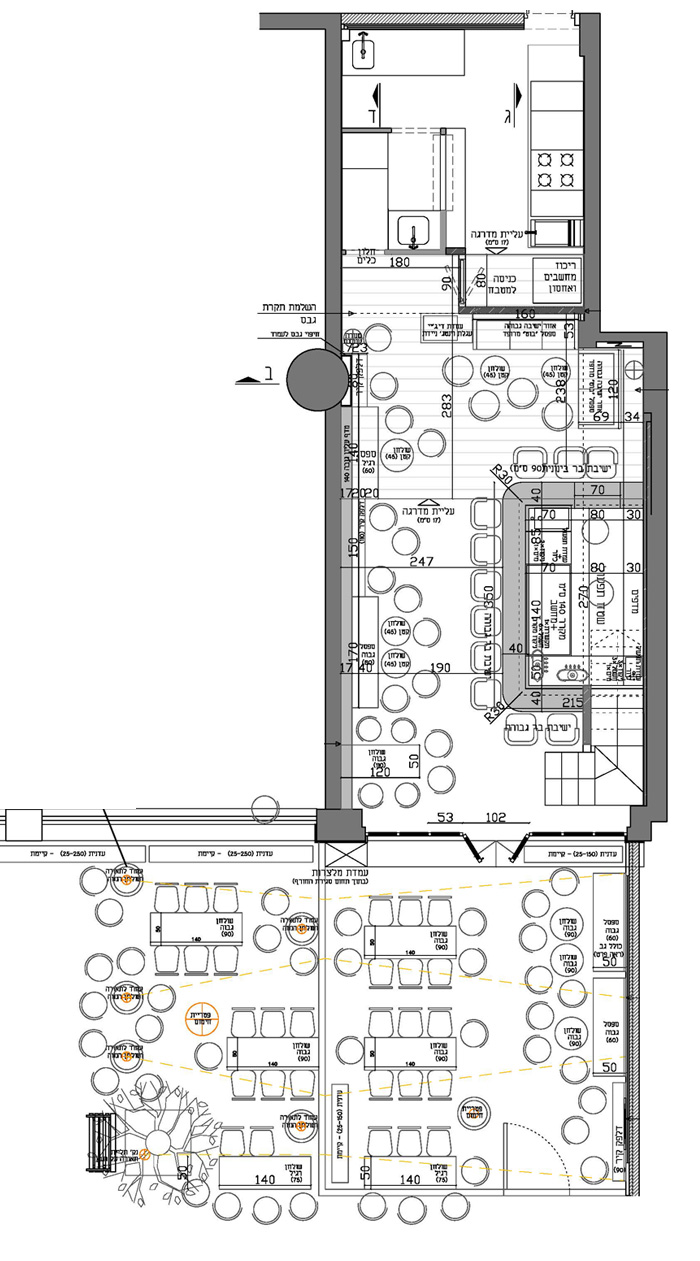
HaMishbezet Bar